Vente Appartement à SAINT ANDRE DE CUBZAC

Appartement à vendre de 56.10 m², 3 pièces à SAINT ANDRE DE CUBZAC - 33240 - Gironde(33)

Descriptif du bien

Réf :
58787821
Surface :
56.10 m²
Pièce :
3
Chambre :
2
WC :
1
Salle de bain :
1


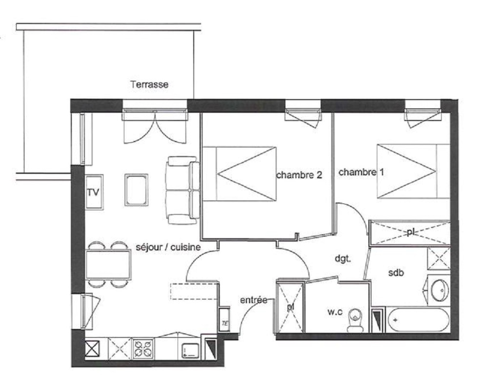
AVANTIM AQUITAINE vous propose en EXCLUSIVITE , un appartement T3 de 56.10 m², VENDU LOUE (pour investissement locatif) en rez-de-chaussée, composé d'une entrée avec placard, d'un séjour avec cuisine américaine de 20.42 m², de 2chambres dont 1 avec placard, 1 salle de bain,1WC séparé, 1 terrasse de 10.24 m² et 2 places de parking.

Loué depuis le 19/03/2015 - Loyer actuel : 617,59 euros hors charges + 55 euros de provision pour charges locatives.

Contact : 05 56 49 85 60 DPE : C - GES: C . Taxe Foncière: 830 euros / an.
Charges moyennes de copropriété: 1031 euros/ an . PRIX : 115 000 euros + 8 % frais d'agence à la charge de l'acquéreur.

Les informations sur les risques auxquels ce bien est exposé sont disponibles sur le site Géorisques : www.georisques.gouv.fr (8.00 % honoraires TTC à la charge de l'acquéreur.)
Copropriété de 66 lots (Pas de procédure en cours).

Charges annuelles : 1031 euros.


Bilan énergétique

Nature de chauffage :
Gaz
Type de chauffage :
Individuel
DPE :
C (111 à 180 kWh/m²/an)
GES :
C (12 à 30 Kg COZ/m²/an)

Annexes

Parking :
2
Ascenseur :
Non
Piscine :
Non
Gardiennage :
Non
Acces handicapè :
Non
Interphone :
Non
Digicode :
Oui

Prix

Prix de vente FAI :
124 200 €
Prix Net vendeur :
115 000 €
Honoraires :
9 200 €

Demande d’informations

Remplissez le formulaire pour recevoir plus d’informations sur ce bien.

Veuillez cocher la case pour indiquer que vous avez lu et compris la politique de confidentialité.
Pour plus d’informations sur vos données personnelles ou pour exercer vos droits vous pouvez consulter nos mentions légales.

* Champs obligatoires

Biens similaires

Appartement

124 200 €

SAINT ANDRE DE CUBZAC (33240)

3 p. 56.10 m² 2 c.

Réf : 58787821

En savoir +

Appartement

98 100 €

SAINT ANDRE DE CUBZAC (33240)

2 p. 37.28 m² 1 c.

Réf : 50389949

En savoir +

Appartement

127 440 €

SAINT ANDRE DE CUBZAC (33240)

2 p. 46.00 m² 1 c.

Réf : 59342718

En savoir +

AVANTIM AQUITAINE S’ENGAGE À VOS CÔTÉS DANS TOUS VOS PROJETS IMMOBILIERS.

Demandez conseil auprès d’experts immobiliers reconnus.